家装设计施工(家装设计施工图包含哪些内容)
家装公司施工流程是怎样的?
1、拆除与准备:在进行任何新的装修之前,可能需要进行一些拆除工作。这包括拆除旧的地板、墙面、水电设施等。确保在拆除过程中保护好周围的物品,并妥善处理废弃物。
2、新房装修施工的一般流程步骤包括设计方案确定、施工准备、水电改造、墙面处理、地面铺装、木工制作、油漆涂装、安装收尾等。

3、施工过程:包括水电改造、瓦工、木工、油漆等工序的施工,装修公司会安排专业的施工队伍进行施工,并进行质量监督和进度控制。 竣工验收和售后服务:装修公司会与业主进行竣工验收,确保装修质量符合要求。
专业的建筑装修设计施工公司朋明建筑好不好
北京朋明建筑装饰工程有限公司成立于2005年02月28日,法定代表人:王立苹,注册资本:6,000.0元,地址位于北京市大兴区安定镇兴安营村东原老镇政府院内。
以下是一些口碑较好的装修公司排名,供您参考: 兆丰设计:兆丰设计拥有多位知名设计师,以高品质的设计和施工质量受到市场和业主的好评。其以“开创高品质家居生活”为品牌理念,注重个性化设计,服务等方面的特点。
昆明四季装饰设计有限公司: - 优势:他们注重与客户的沟通,以及施工过程的透明度。 - 注意事项:了解他们的项目时程安排以及他们与供应商和承包商的合作关系,以确保施工的顺利进行。
家装设计施工
1、🔨;木匠、瓦工、油工这是施工环节的“三兄弟”,根本出场次序是:木——瓦——油。根本出场原则是——谁脏谁先上。“谁脏谁先上”也是决议家装次序的一个根本原则之一。🌳;地板地板装前必定要做找平。
2、本文将介绍家装施工的顺序及注意事项,帮助业主更好地了解家装施工流程。;刷墙面漆油工进场,主要完成墙面基层处理、刷面漆、给木工打的家具上漆等工作。准备贴壁纸,只需要让油工在计划贴壁纸的墙面做基层处理就可以。
3、木工、泥工、油漆工是施工环节的“三兄弟”,基本出场顺序是:木工、泥工(瓦工)、油漆工。基本出场原则是谁脏谁先上“谁脏谁先上”也是决定家装顺序的一个基本原则之一,我后面还会提到。

4、本文将为大家介绍家装施工的顺序,帮助大家更好地了解家装施工的流程。;前期设计主要是根据自己的生活习惯设计,并且对自己的房间进行一次详细的测量,最好亲自测量一遍。
5、这包括拆除墙壁、地板、天花板等。然后,进行水电改造。水电改造是装修的重要环节,需要找到专业的水电工进行施工。水电改造包括水管、电线的布置和安装。接着,进行墙面处理。墙面处理包括刷漆、贴瓷砖等。
6、泥工工程。瓷砖、水泥等材料进场,厨房、卫生间防水处理,陶瓷墙面砖铺设,完工养护。木工工程。木质工程材料进场,吊顶墙面龙骨铺设,面板安装及制作,门套窗套制作,墙面装饰施工,木质固定家具制作,木质构件安装调整。
家装装修施工流程是怎样的?
1、首先就是水电的安装,因为水电都是隐蔽工程,不是埋在地下,就是隐藏在墙内,所以必须最先施工。一般水管需要挖管槽,进行安装再填埋。
2、以下是一般装修流程的顺序和关键步骤: 方案设计和预算确定:首先,您需要与设计师沟通,确定装修风格、布局、材料选择等要求,并制定装修预算。设计师会绘制装修方案,经您确认后进入下一步。
3、拆除与准备:在进行任何新的装修之前,可能需要进行一些拆除工作。这包括拆除旧的地板、墙面、水电设施等。确保在拆除过程中保护好周围的物品,并妥善处理废弃物。
家装施工顺序及注意事项
1、室内装修施工步骤和注意事项 业主可能不熟悉最初的改造施工步骤和注意事项,但有点震惊。我将谈谈我多年来在装饰行业的经历。

2、下面是一个大致的装修流程,帮助您理解整个过程,并提供一些注意事项。
3、人们在进行家居装修的过程中,需要考虑到多种因素,除此之外,需认真购买各种装修材料,从而创造更好的生活环境。那人们进行室内装修施工顺序应该是什么呢?接下来,小编就为大家介绍吧,感兴趣的朋友们继续往下看吧。
4、木工、瓦工、油工是施工环节的“三兄弟”,基本出场顺序是:木——瓦——油。基本出场原则是——谁脏谁先上。“谁脏谁先上”也是决定家装顺序的一个基本原则之一,我后面还会提到。
5、龙骨架的设计 一般情况下,木工施工人员将所有的准工作就绪后,靠前 项就应该进行龙骨的架设了。门窗的制作 木工施工靠前 步就是先对其门窗的制作,当然门窗的制作也包括门套与窗套的制作。
家装施工流程详解
首先就是水电的安装,因为水电都是隐蔽工程,不是埋在地下,就是隐藏在墙内,所以必须最先施工。一般水管需要挖管槽,进行安装再填埋。
房屋装修的基本步骤和流程如下: 确定装修需求和风格:根据房屋实际情况和个人需求确定装修项目内容和装修风格。 选定装修公司:根据装修需求选择装修公司,并签订装修合同。
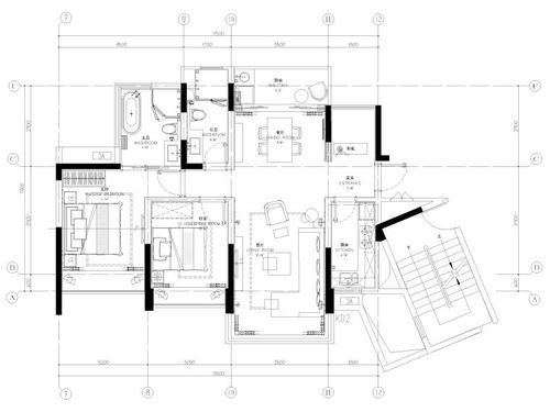
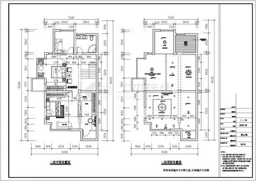
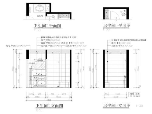
主要是识别装修过程中涉及的区域,特别是瓷砖区域,墙面涂料区域,壁纸区域,建筑面积。 定义主要墙体尺寸,尤其是后面应设计家具的墙壁尺寸。
装修施工流程 拆除工程拆除:如是结构性的要办妥手续。搬运:拆除的垃圾及废旧物资。清理:做施工场地清扫工作。水电煤工程A.冷热水管的排放及供水设备的安装。
